2-ком. квартира 46,7 м², 2/9 эт.

Новобелицкий р-н, ул. Ильича, д. 297 (остановка "Кристалл")

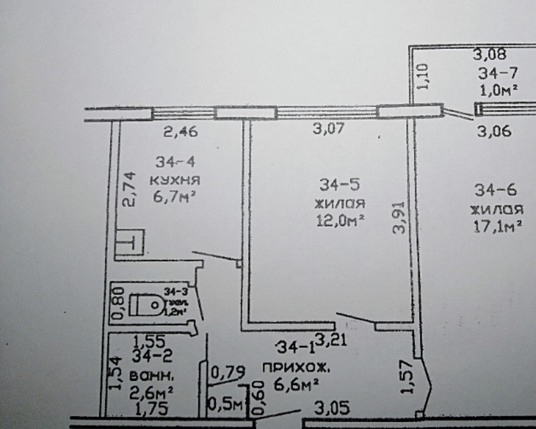
Характеристики объекта

Общая площадь:46,7 м²
Жилая площадь:29,1 м²
Кухня:6,7 м²
Тип дома:панельный
Этаж / Этажей в доме:2/9
Водоснабжение:горячая вода
Санузел:раздельный
Расположение: неугловая
Балкон: балкон
Ремонт: косметический

Дополнительная информация

Двухкомнатная квартира 46 кв.м в 9-этажном панельном доме, 2 этаж, по ул. Ильича, 297 в Новобелицком районе (остановка "Кристалл"). Комнаты изолированные, санузел раздельный, квартира неугловая, есть счётчики на воду, подвал, подсобка общего пользования на этаже. Косметический ремонт, все окна ПВХ, балконная рама металлический профиль, новые межкомнатные двери, потолки и стены выровнены под покраску и обои, двойная деревянная входная дверь. Отличное месторасположение - рядом ТЦ «Кристалл», продуктовый рынок, 3 садика, 2 школы, поликлиника, 3 гор. больница, Республиканский радиологический мед. центр. Возможен небольшой торг. +375293977879. Есть парковка.
Новобелицкий р-н, ул. Ильича, д. 297 (остановка "Кристалл")
*Оплата производится в белорусских рублях по курсу Нацбанка РБ

Рекомендуем посмотреть

Новобелицкий р-н, ул. Димитрова, д. 49 (ост. 2-я школа)
95 883 р.
2 164,40 р./м²
29.04.2026
 
Новобелицкий р-н, ул. Герцена, д. 4
118 444 р.
2 820,10 р./м²
29.04.2026
 
Новобелицкий р-н, ул. Ильича, д. 36 (2 школа/Ленинградская)
135 365 р.
3 001,44 р./м²
Собственник
15.04.2026
 
Новобелицкий район, ул. Пионерская, д. 15
176 256 р.
3 081,40 р./м²
29.04.2026
 
Бетон с доставкой!
Новобелицкий р-н, ул. Оськина, д. 58
175 000 р.
2 822,58 р./м²
Собственник
07.04.2026
 
Новобелицкий р-н, г. Гомель, ул. Оськина, д. 34 (мкн Южный, Радиологический центр)
163 284 р.
3 140,08 р./м²
Собственник
03.02.2026
 
Новобелицкий р-н, г. Гомель, ул. Севастопольская, д. 103
152 285 р.
3 095,22 р./м²
29.04.2026
 
Новобелицкий район, ул. Оськина, д. 62 (м-н Южный (104-й))
146 645 р.
2 836,46 р./м²
29.04.2026
 
Все операции с недвижимостью!
Новобелицкий р-н, ул. Техническая 1-я, д. 54
141 005 р.
3 006,50 р./м²
Онлайн-показ
29.04.2026
 
Новобелицкий район, ул. Ильича, д. 194 (Поликлиника № 1)
133 954 р.
2 868,39 р./м²
29.04.2026
 
Новобелицкий район, ул. Ильича, д. 36 (Нотариальная контора, РСЦ)
135 364 р.
3 001,42 р./м²
29.04.2026
 
Новобелицкий район, ул. Севастопольская, д. 103
95 883 р.
1 913,83 р./м²
29.04.2026
 
Новобелицкий р-н, ул. Ильича, д. 43
132 545 р.
3 082,44 р./м²
Собственник
03.04.2026
 
Новобелицкий район, ул. Техническая 1-я, д. 52
130 852 р.
2 795,98 р./м²
29.04.2026
 
Новобелицкий р-н, ул. Оськина
126 905 р.
2 440,48 р./м²
Собственник
29.04.2026
 
Новобелицкий район, ул. Димитрова, д. 49 (Школа № 2)
125 494 р.
2 734,07 р./м²
29.04.2026
 
Новобелицкий район, ул. Техническая 1-я, д. 54
124 084 р.
2 651,37 р./м²
29.04.2026
 
Новобелицкий р-н, ул. Урицкого
112 804 р.
2 820,10 р./м²
Собственник
23.04.2026
 
Новобелицкий р-н, ул. Пионерская, д. 15
176 256 р.
3 044,15 р./м²
Собственник
25.04.2026
 
Показать ещё квартиры
141 005 р.
3 019,38 р./м²
50 000 $* • 42 765 €*
Сообщения
Написать сообщение
Показать контакты
Собственник
Пожалуйста, сообщите владельцу недвижимости, что нашли этот вариант на сайте "Моя реклама"