2-ком. квартира 36,4 м², 11/16 эт.

Советский р-н, г. Гомель, ул. Косарева, д. 21

Характеристики объекта

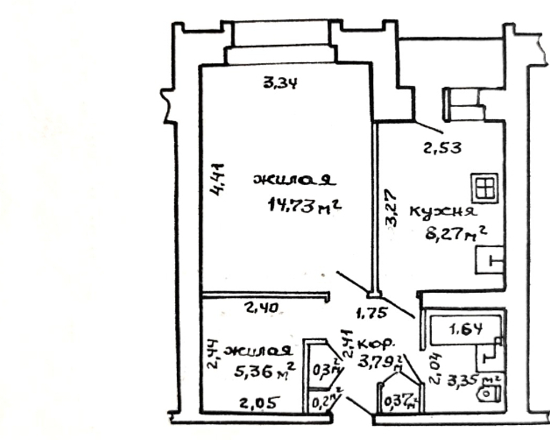
Общая площадь:36,4 м²
Жилая площадь:20,1 м²
Кухня:8,3 м²
Тип дома:кирпичный
Этаж / Этажей в доме:11/16
Водоснабжение:горячая вода
Санузел:совмещенный
Балкон: лоджия
Ремонт: косметический

Дополнительная информация

Продается 2-комнатная квартира малосемейного типа на 11 этаже 16-этажного дома 1990 года постройки по адресу: ул. Косарева, 21. Общая площадь квартиры - 36,37 кв. м., жилая - 20,09 кв.м., кухня - 8,27 кв. м. Есть лоджия. Везде установлены стеклопакеты, сделан косметический ремонт. Перепланировка узаконена. Соседи спокойные и отсутствующие.
Дом расположен в самом сердце Советского района. В шаговой доступности остановки, мелкие и крупные магазины ("Евроопт", "Гиппо", "Ома", "Zarko") и рынок "Давыдовский". Локация богата разнообразием пунктов бытового обслуживания и учебных заведений. Прямо под домом - каток "Солнечный", в паре остановок - парк "Фестивальный" и Медгородок.
Приглашаем всех желающих на просмотр! Наше агентство гарантирует своевременный показ и индивидуальный подход к каждому клиенту.
По данному объекту возможен торг. УНП 193505113. Лиц. МЮ РБ №02240/409, 05.03.2021 г. Договор 13/9 от 18.02.2026.
Советский р-н, г. Гомель, ул. Косарева, д. 21
*Оплата производится в белорусских рублях по курсу Нацбанка РБ

Рекомендуем посмотреть

Советский р-н, 0 Гомель, ул. Жукова, д. 26к2
119 851 р.
2 502,11 р./м²
02.03.2026
 
Советский р-н, ул. Барыкина, д. 167А (ТЦ Мандарин, ТЦ Мебельный квартал)
118 424 р.
2 368,48 р./м²
02.03.2026
 
Советский р-н, г. Гомель, мкр Энергетиков, д. 30
85 608 р.
1 565,05 р./м²
02.03.2026
 
Советский р-н, г. Гомель, ул. Сосновая, д. 6
108 437 р.
2 612,94 р./м²
Собственник
19.01.2026
 
Памятники в Гомеле выгодно
Советский р-н, пр-т Октября, д. 11
119 566 р.
2 440,12 р./м²
02.03.2026
 
Советский р-н, ул. Минская, д. 36
118 424 р.
3 107,43 р./м²
02.03.2026
 
Советский район, ул. Братьев Лизюковых, д. 14
116 997 р.
3 046,80 р./м²
02.03.2026
 
Советский район, ул. Черноморская, д. 7 (Черноморский рынок)
115 570 р.
2 474,73 р./м²
02.03.2026
 
Советский р-н, ул. Минская
114 144 р.
2 999,05 р./м²
Собственник
12.02.2026
 
Советский р-н, ул. Павлова, д. 22
108 437 р.
2 838,66 р./м²
02.03.2026
 
Советский район, ул. Космическая, д. 9 (Училище МЧС)
99 876 р.
2 134,10 р./м²
02.03.2026
 
Советский р-н, ул. Бочкина, д. 186
108 000 р.
2 297,87 р./м²
Собственник
23.01.2026
 
Советский р-н, ул. Братьев Лизюковых, д. 6 (Мотороремонтный завод)
107 000 р.
2 708,86 р./м²
Собственник
25.02.2026
 
Советский р-н, г. Гомель, пр-т Речицкий, д. 18А
105 583 р.
2 383,36 р./м²
02.03.2026
 
Советский р-н, ул. Владимирова, д. 15
105 583 р.
2 285,35 р./м²
02.03.2026
 
Советский р-н, ул. Братьев Лизюковых, д. 14 (Мотороремонтный завод)
105 000 р.
2 548,54 р./м²
Онлайн-показ
Собственник
15.01.2026
 
Советский р-н, ул. Матросова, д. 4 (кинотеатр Октябрь)
102 730 р.
2 581,16 р./м²
02.03.2026
 
Советский р-н, ул. Минская
99 876 р.
2 594,18 р./м²
Собственник
16.12.2025
 
Советский район, ул. Минская, д. 16
119 851 р.
2 461,01 р./м²
02.03.2026
 
Показать ещё квартиры
99 876 р.
2 746,11 р./м²
35 000 $* • 29 673 €*
Сообщения
Написать сообщение
Показать контакты
Агентство Экспресснедвижимость-риэлт
г. Гомель, ул. Жарковского, 26, ком. 25
Пожалуйста, сообщите владельцу недвижимости, что нашли этот вариант на сайте "Моя реклама"