3-ком. квартира 56,8 м², 4/5 эт.

Речицкий район, г. Речица, ул. Советская, д. 102

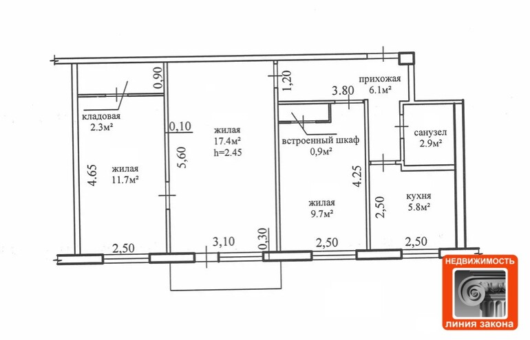
Характеристики объекта

Общая площадь:56,8 м²
Жилая площадь:38,8 м²
Кухня:5,8 м²
Тип дома:панельный
Этаж / Этажей в доме:4/5
Водоснабжение:горячая вода
Санузел:совмещенный
Балкон: балкон
Ремонт: косметический

Дополнительная информация

Предлагаем к продаже трёхкомнатную квартиру, расположенную по ул. Советская, 102 в городе Речица Гомельской области. Отличное месторасположение дома, центральная часть города. Окружающий район обладает развитой инфраструктурой. Остановки общественного транспорта. - стандартная планировка квартиры площадью 57 кв.м. - 4 этаж пятиэтажного панельного жилого дома 1965 г.п. - жилое состояние квартиры, без ремонта по современным стандартам. - окна заменены на ПВХ стеклопакеты, кроме одного окна. - в квартире предусмотрена функциональная кладовая в жилой комнате. - наличие застекленного балкона. - квартира не угловая. - санузел совмещенный, обложен керамической плиткой. - установлены счётчики воды, света, газа. - обстановка квартиры и мебель обсуждается при продаже. - имеется собственное подвальное помещение. - капремонт года в многоквартирном жилом доме произведен в 2007 году. - двор обустроен стояночными местами. Квартира не подвергалась перепланировкам, имеется технический паспорт. Обмен на иную недвижимость не рассматриваем. УНП 490680213. Лиц. МЮ РБ №02240/177 от 04.04.2008 г. бессрочно. Договор 26/5 от 18.03.2026.
Речицкий район, г. Речица, ул. Советская, д. 102
*Оплата производится в белорусских рублях по курсу Нацбанка РБ

Рекомендуем посмотреть

Добрушский район, аг. Борщовка, ул. Полевая, д. 6
23 606 р.
307,77 р./м²
01.04.2026
 
Чечерский р-н, г. Чечерск, ул. Советская, д. 51 (Чечерск)
61 727 р.
964,48 р./м²
Собственник
26.02.2026
 
Мозырский р-н, г. Мозырь, ул. В.Хоружей, д. 6
63 500 р.
982,97 р./м²
Собственник
08.01.2026
 
Речицкий р-н, г. Речица, ул. Интернациональная, д. 2
70 546 р.
1 343,73 р./м²
Собственник
30.03.2026
 
Бетон М150-М500
Речицкий район, г. Речица, ул. Чапаева, д. 13 (Центр города, Речицабыт)
71 409 р.
1 305,47 р./м²
01.04.2026
 
Буда-Кошелевский р-н, аг. Октябрь, ул. Октябрьская, д. 5
73 485 р.
897,25 р./м²
Онлайн-показ
Собственник
16.03.2026
 
Добрушский р-н, г. Добруш, ул. Октябрьская, д. 32
75 000 р.
1 170,05 р./м²
Собственник
15.01.2026
 
Буда-Кошелевский р-н, аг. Коммунар, ул. Молодежная, д. 3
82 303 р.
1 248,91 р./м²
Собственник
08.02.2026
 
Светлогорский район, г. Светлогорск, ул. Социалистическая, д. 99
82 622 р.
1 246,18 р./м²
01.04.2026
 
Речицкий р-н, г. Речица, ул. Строителей, д. 18 (Остановка магазин новоречицкий)
88 182 р.
1 297,37 р./м²
Собственник
15.02.2026
 
Житковичский район, г. Житковичи, ул. Школьная, д. 2
90 589 р.
1 433,37 р./м²
01.04.2026
 
г. Рогачев, ул. Ленина, д. 87
93 000 р.
1 469,19 р./м²
Собственник
12.02.2026
 
Речицкий район, г. Речица, ул. Строителей, д. 12 (Торговый центр Глобал, район Ритм)
94 425 р.
1 333,69 р./м²
01.04.2026
 
Добрушский р-н, г. Добруш, ул. Октябрьская, д. 32
Собственник
13.02.2026
 
73 770 р.
1 298,77 р./м²
25 097 $* • 21 888 €*
Показать контакты
Олег
Пожалуйста, сообщите владельцу недвижимости, что нашли этот вариант на сайте "Моя реклама"