Здание свободного назначения от 328,7 до 328,7 м²

Новобелицкий район, ул. Кооперативная

Характеристики объекта

Вид сделки: продажа
Этаж/Этажей в здании: 1/1

Дополнительная информация

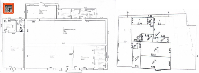
Продается производственное здание с офисной инфраструктурой. Помещения в здании предназначены для организации практически любого вида деятельности (организация торговли, производства, фитнеса, шиномонтажа и др.) Для этих целей в здании имеется электричество, центральное водоснабжение, собственное отопление и местная канализация. Оборудованы отдельные входы и санузлы. При желании можно приобрести здание с оборудованием для деревообработки (в одном из помещений организовано такое производство под ключ). Здание продается целиком. УНП 490680213. Лиц. МЮ РБ №02240/177 от 04.04.2008 г. бессрочно. Договор 179/1 от 28.04.2026.
Новобелицкий район, ул. Кооперативная
*Оплата производится в белорусских рублях по курсу Нацбанка РБ
ПОДНИМИТЕ ОБЪЯВЛЕНИЕ В ТОП!
от 388 609 р.
1 182,26 р./м²
137 800 $* •  117 860 €*
Показать контакты
Евгений
Пожалуйста, сообщите владельцу недвижимости, что нашли этот вариант на сайте "Моя реклама"